Nuovo
-
Superficie
67 mq
-
Bagni
1
-
Camere
1
Descrizione
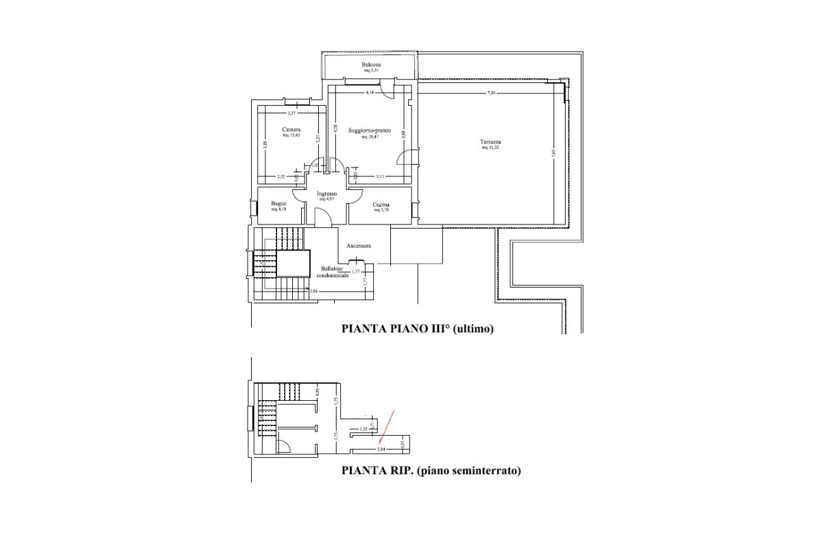
VIAREGGIO – Quartiere Marco Polo A soli 1,1 km dal mare, in una delle zone più richieste e ben servite della città, proponiamo in vendita un grazioso appartamento posto al terzo ed ultimo piano di una palazzina signorile dotata di ascensore. L’immobile gode di una posizione tranquilla e riservata, pur rimanendo a pochi minuti a piedi da tutti i principali servizi, negozi, supermercati, bar e ristoranti, oltre che dal rinomato lungomare di Viareggio. L’appartamento si presenta in ottime condizioni generali, luminoso e ben distribuito negli spazi. Si compone di ingresso, cucinotto separato, ampia zona giorno/pranzo con accesso diretto all’elemento più distintivo della casa: una splendida terrazza di circa 50 mq, ideale per pranzi e cene all’aperto, momenti di relax o per creare un piccolo giardino pensile con vista aperta sui tetti della città. La zona notte comprende una camera matrimoniale. Completano la proprietà un posto auto assegnato all’interno del parcheggio condominiale e un piccolo ripostiglio di proprietà situato nella cantina condominiale, perfetto per biciclette o attrezzature da mare. La superficie interna è di 47 mq, mentre la superficie commerciale complessiva è di 82,7 mq, considerando anche le superfici esterne ponderate. L’esposizione e il piano alto rendono l’appartamento particolarmente luminoso e arioso durante tutto l’arco della giornata. Ideale come abitazione principale per coppie, come casa vacanze o come investimento da mettere a reddito data la forte richiesta di immobili nella zona Marco Polo, a pochi minuti dalle spiagge e dalla pineta di Ponente. Richiesta: € 280.000,00 (Prezzo al mq: € 3.385,00) RIF. 712
Informazioni aggiuntive
Tipologia:Appartamento
Superficie:67 mq
Numero Vani:4
Numero Camere:1
Numero Bagni:1
Piano:3°
Piani:3
Posto Auto:Posto Auto
Ingresso:Condominiale
Cucina:Semi abitabile
Classe Energetica:G
P.E. Rinnovabile:11.92 kWh/m2
P.E. Non Rinnovabile:305.43 kWh/m2
Prestazione Estate:Bassa
Prestazione Inverno:Bassa
Terrazza/Balcone:Sì
Accessori
Ascensore:Sì
Riscaldamento:Autonomo
Distanze
Mare:1100m




















