-
Superficie
177 mq
-
Bagni
3
-
Camere
3
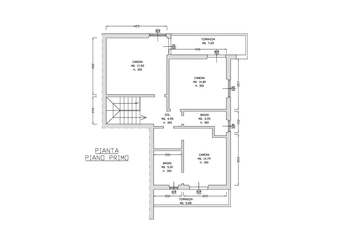
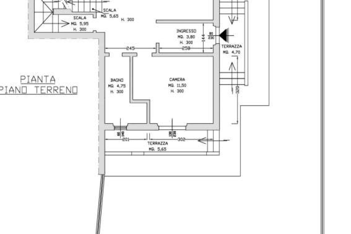
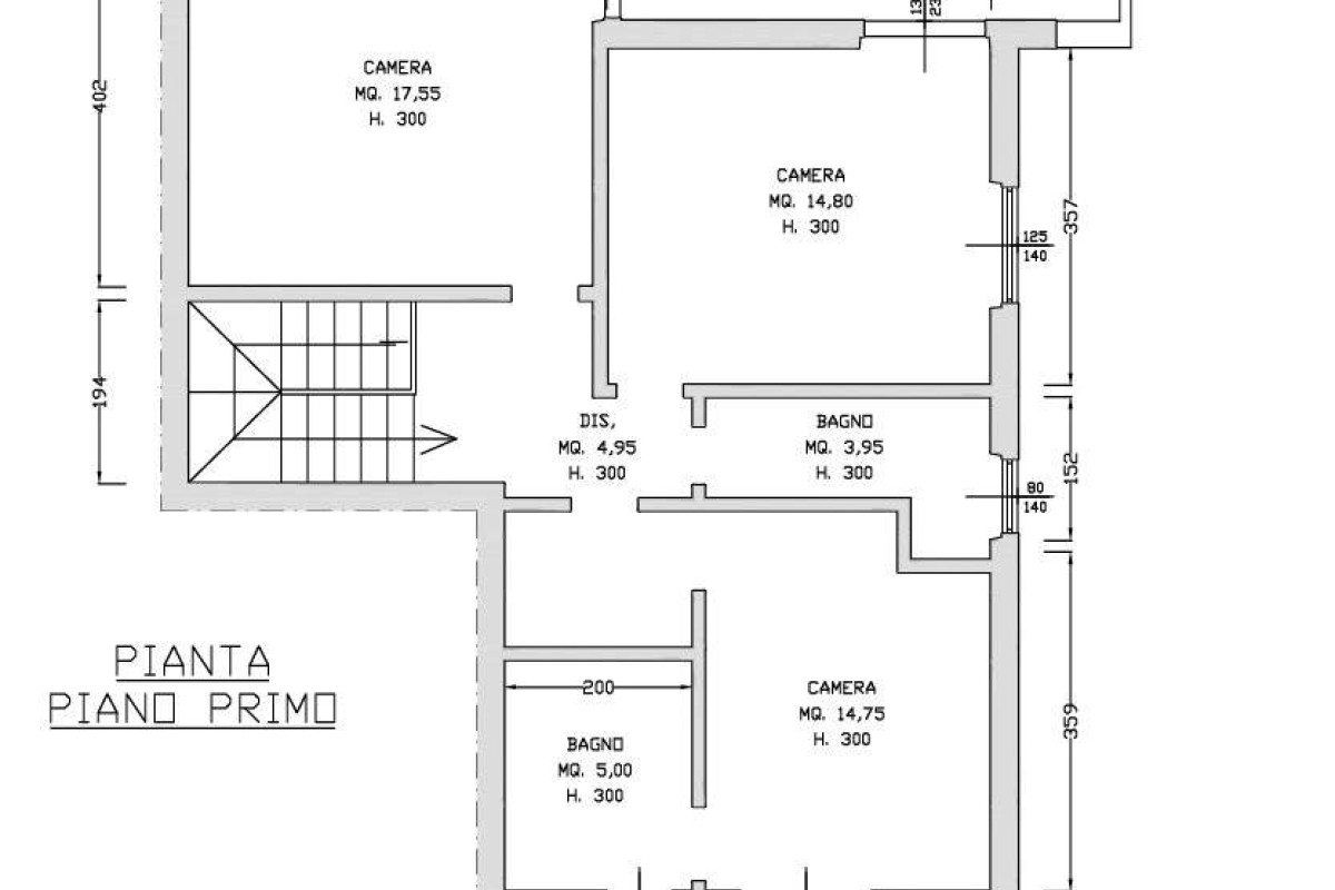
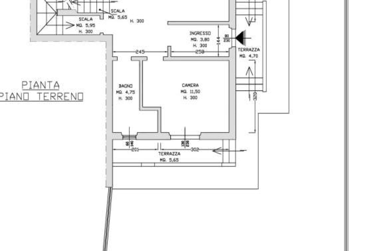
Descrizione
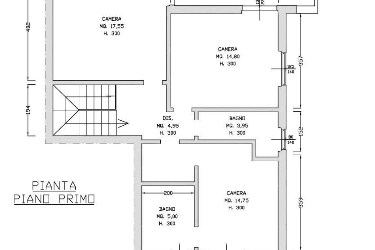
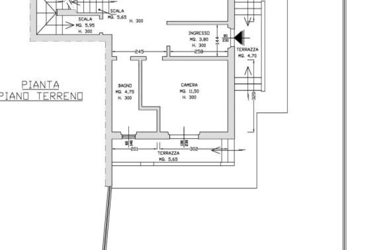
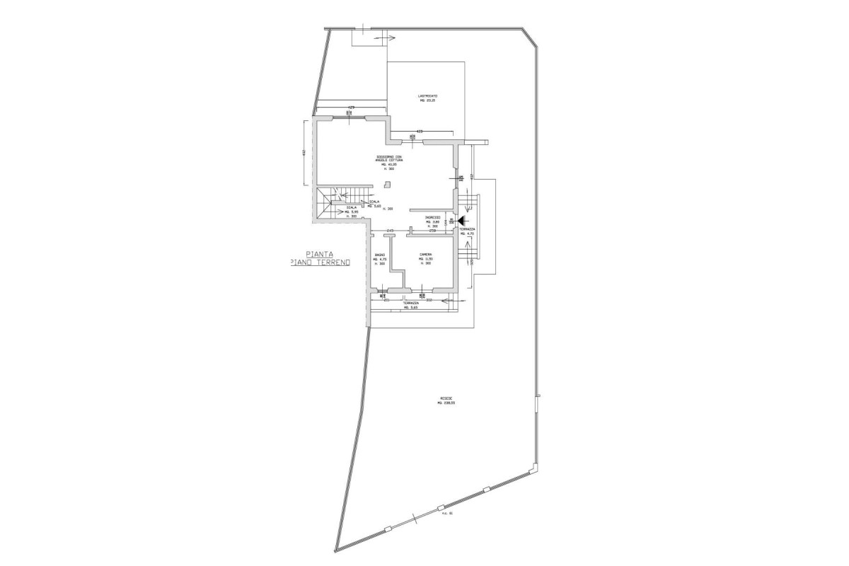
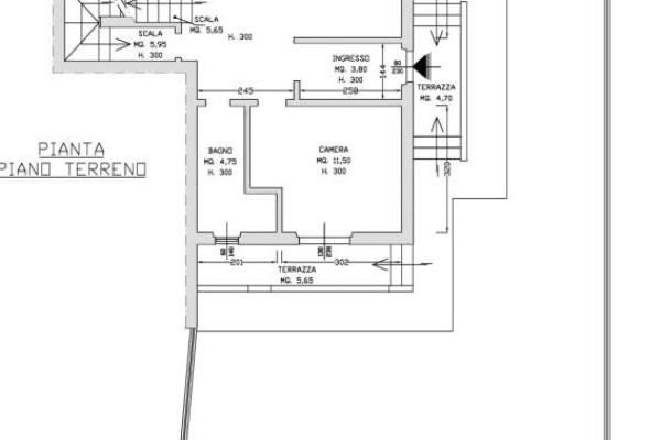
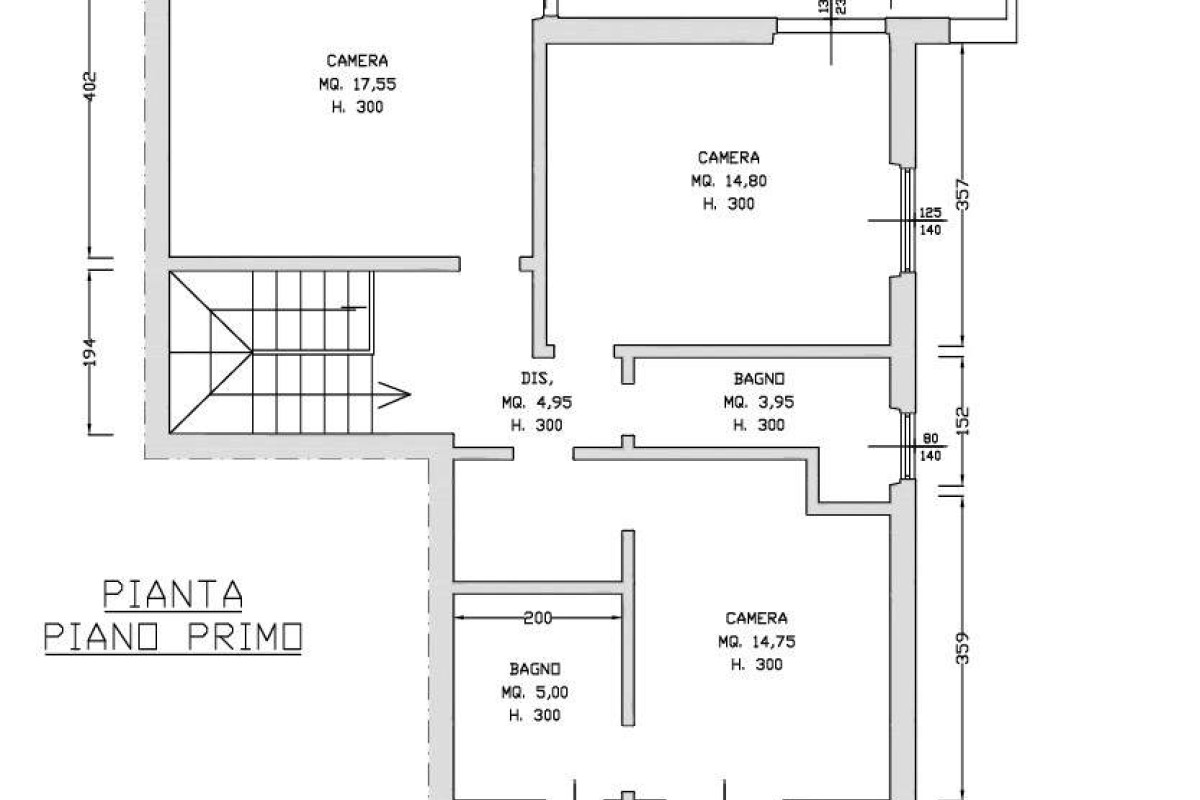
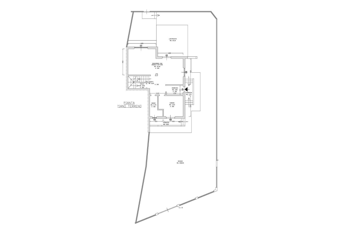
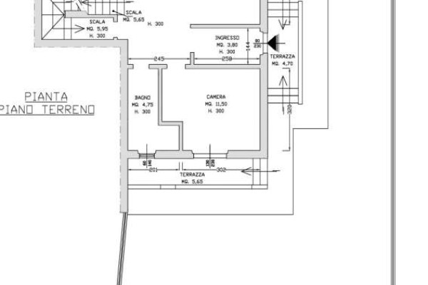
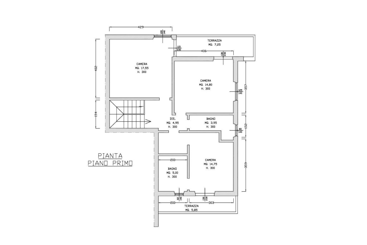
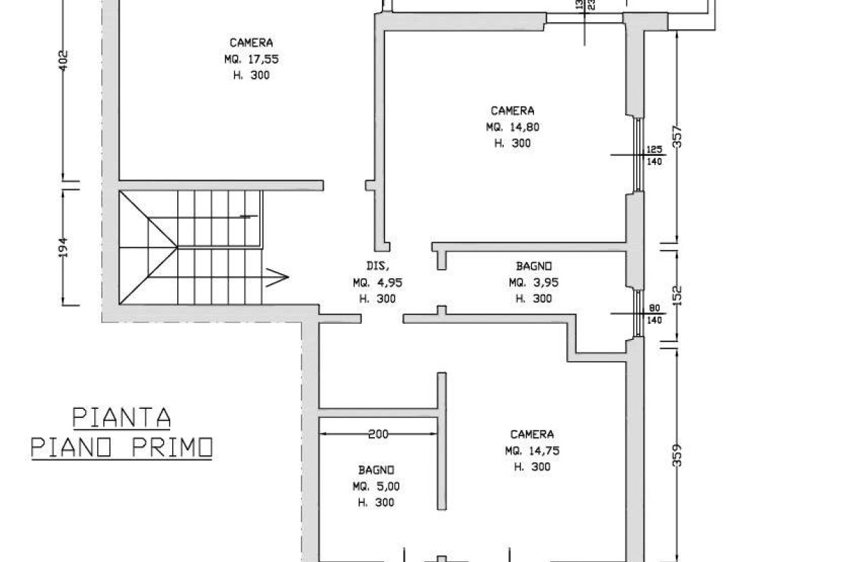
MARINA DI PIETRASANTA – Tonfano RIF. 430 A soli 850 metri dal mare, in una delle zone più richieste e residenziali di Tonfano, proponiamo elegante villa in complesso bifamiliare inserita in contesto tranquillo e ben curato. L’immobile si sviluppa su più livelli ed è così composto: Piano terra: ampia terrazza d’ingresso ideale per pranzi all’aperto, luminoso soggiorno con zona cottura, camera matrimoniale e bagno Piano primo: tre camere da letto, di cui una con bagno privato, ulteriore bagno a servizio del piano e due balconi. Piano seminterrato: spaziosa lavanderia, ripostiglio e vano tecnico, perfettamente organizzati per garantire massima funzionalità. La superficie dell’immobile è di circa 177 mq, con superficie commerciale di 197 mq, oltre a giardino privato di circa 238 mq, ideale per momenti di relax e convivialità all’aperto. La villa è dotata di aria condizionata, impianto di allarme e sistema di videosorveglianza, elementi che assicurano comfort e sicurezza. Soluzione ideale sia come residenza principale sia come casa vacanze di prestigio, grazie alla vicinanza al mare e ai principali servizi. Prezzo richiesto: € 1.280.000,00 (Prezzo al mq: € 6.598,00) RIF. 430










































