Descrizione
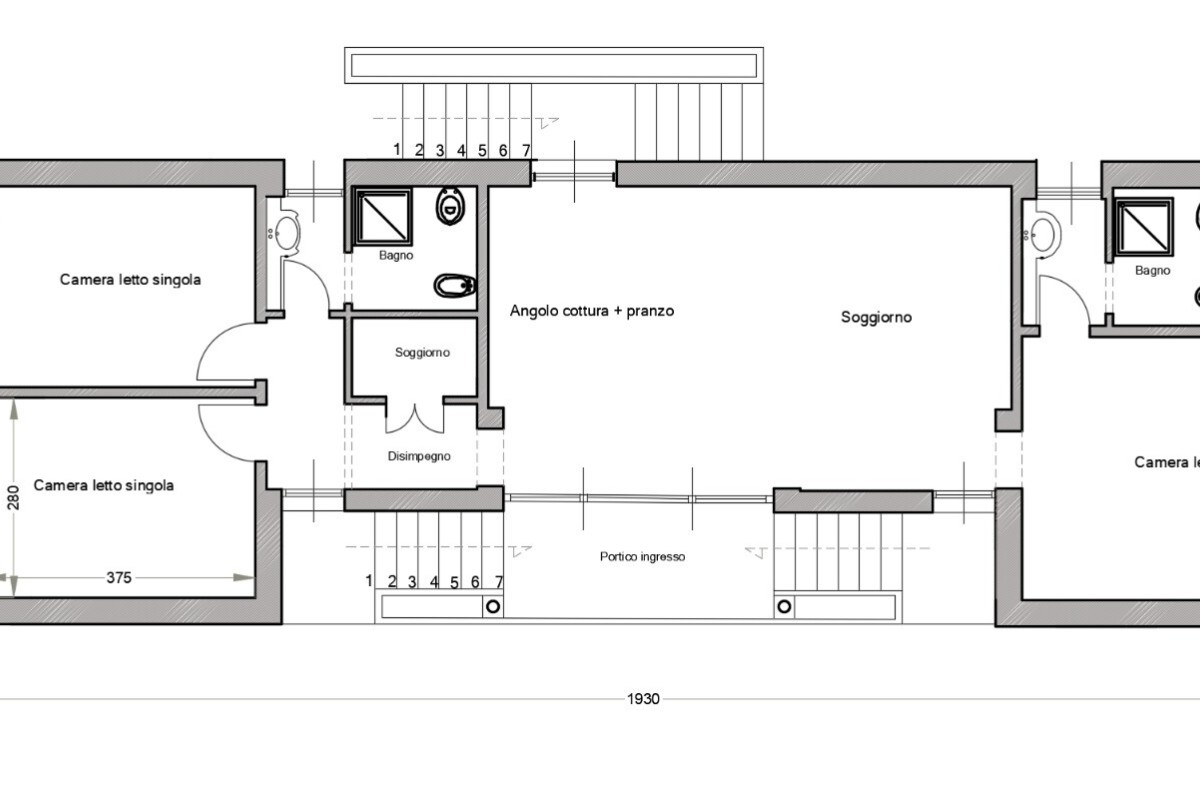
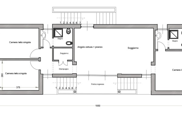
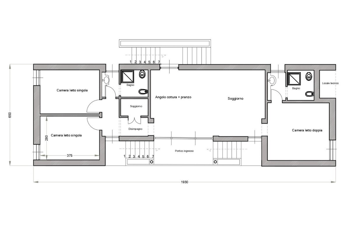
NOSTRA ESCLUSIVA PIETRASANTA: appena fuori dal centro storico, a 900 metri dalla piazza del Municipio e 4,5km dal mare vendesi terreno edificabile con progetto per la costruzione di una casa singola di 107 mq lordi. Il terreno presenta una forma rettangolare regolare (16,00 m x 41,00 m), morfologia pianeggiante e accesso da tramite viabilità privata. L'analisi del progetto in pianta evidenzia l'ottima fattibilità di una villa singola di circa 107 mq lordi, sviluppata longitudinalmente (19,30 m x 6,50 m). Tale soluzione architettonica appare efficace poiché: Garantisce il rispetto delle distanze dai confini nonostante la larghezza contenuta del lotto. Prevede una distribuzione funzionale con ampia zona giorno centrale, due ali dedicate alla zona notte (3 camere totali) e doppi servizi. Valorizza gli spazi esterni attraverso porticati d'ingresso e di soggiorno che integrano il fabbricato nel giardino circostante. Superficie terreno 656mq.
Richiesta € 190.000,00











