-
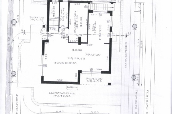
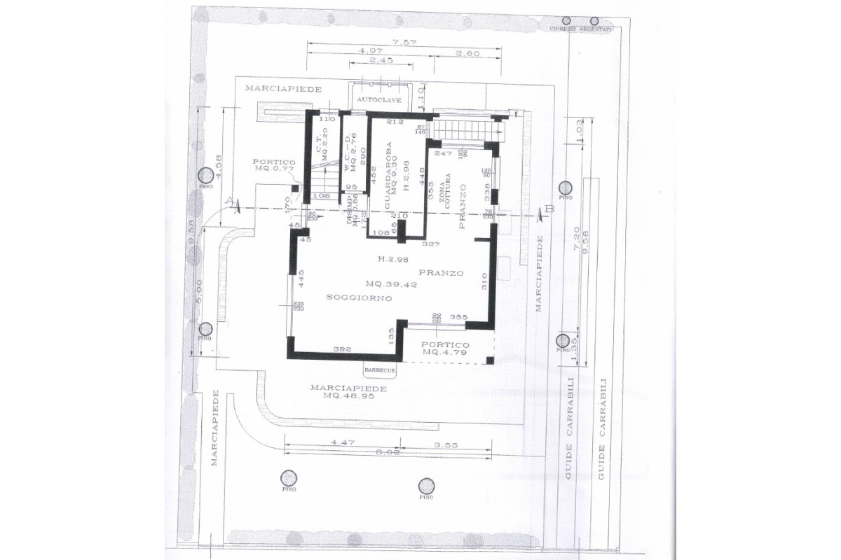
Superficie
137 mq
-
Bagni
3
-
Camere
3
Descrizione
MARINA DI PIETRASANTA – Fiumetto | A soli 760 metri dal mare Proponiamo in vendita villetta singola libera su quattro lati, immersa nel verde e nella tranquillità, con giardino privato e accesso carrabile. L’immobile, di circa 137 mq, si sviluppa su due livelli oltre a cantina, ed è così composto: Piano terra: ingresso, ampio soggiorno, cucina abitabile, studio e bagno Piano primo: tre camere matrimoniali e due bagni Piano seminterrato: cantina con accesso indipendente dall’esterno La proprietà è circondata da un giardino su quattro lati, ideale per vivere gli spazi esterni in totale privacy. Soluzione perfetta sia come residenza principale che come casa vacanze, grazie alla posizione strategica a pochi minuti dal mare e dai servizi. Prezzo: € 1.100.000 Rif. 588

















