-
Superficie
140 mq
-
Bagni
1
-
Camere
3
Descrizione
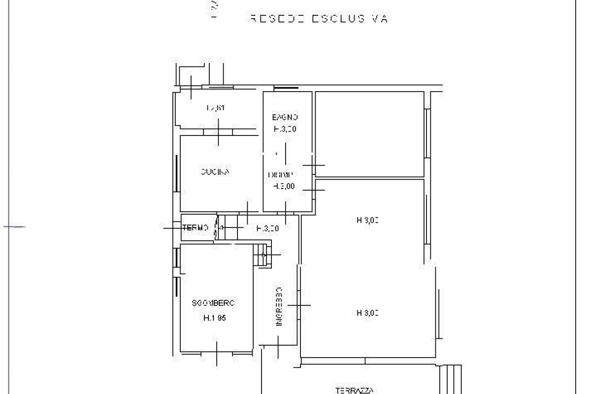
PIETRASANTA: Villetta unifamiliare da ristrutturare a 1 km dal centro storico e a 3,5 km dal mare composta da ingresso, sala con terrazza, cucina, 3 camere, grande ripostiglio, bagno; giardino su 4 lati con posti auto e altro ampio locale di rimessaggio. Superficie immobile mq.140, giardino disponibile mq.420, ripostiglio esterno mq.22, superficie commerciale mq.190. €.490.000,00 (costo al mq. €.2.578,00) RIF.300 N.B. Alcune immagini di questo immobile, pubblicate sul sito e sui portali immobiliari, hanno finalità puramente dimostrative. Esse rappresentano gli spazi esistenti con proposte di arredamento; i pavimenti rimangono invariati. Tali immagini servono esclusivamente a illustrare come l’immobile possa assumere un aspetto più gradevole e contemporaneo attraverso la semplice sostituzione degli arredi.






















































