-
Superficie
150 mq
-
Bagni
4
-
Camere
3
Descrizione
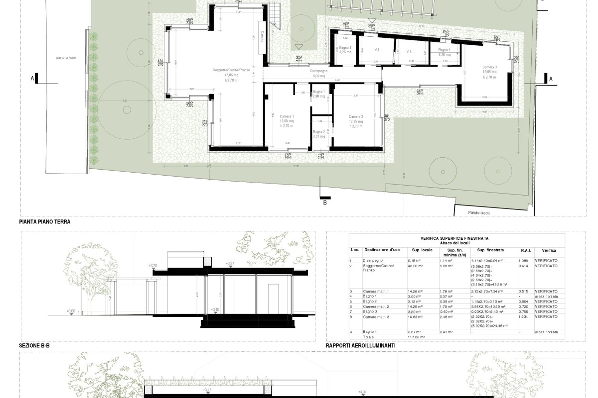
FORTE DEI MARMI – Vittoria Apuana, a soli 750 metri dal mare, proponiamo villa unifamiliare indipendente, interamente sviluppata su un unico livello . La proprietà, di circa 150 mq, è composta da ampio e luminoso soggiorno con cucina a vista 3 camere da letto 4 bagni, comodi e ben distribuiti All’esterno, la villa è circondata da un giardino privato di circa 400 mq, disposto su quattro lati, è presente inoltre una splendida terrazza di copertura, accessibile tramite scala esterna, concepita come un vero e proprio living outdoor panoramico, perfetto per pranzi, cene e momenti conviviali, paragonabile a un giardino privato sopraelevato ideale per vivere appieno gli spazi all’aperto. L’immobile è dotato di impianto fotovoltaico, elemento che garantisce maggiore efficienza energetica e attenzione alla sostenibilità. Soluzione ideale come residenza principale, villa al mare o investimento di prestigio. Prezzo: € 2.600.000,00
FORTE DEI MARMI – Vittoria Apuana Just 750 metres from the sea, we offer an independent single-family villa, entirely developed on one single level. The property, measuring approximately 150 sqm, comprises a spacious and bright living area with open-plan kitchen, 3 bedrooms, and 4 well-distributed bathrooms. Externally, the villa is surrounded by a private garden of about 400 sqm, extending on all four sides. The property also features a beautiful accessible rooftop terrace, reachable via an external staircase, designed as a true panoramic outdoor living area, perfect for lunches, dinners, and convivial moments, comparable to an elevated private garden, ideal for fully enjoying outdoor spaces. The villa is equipped with a photovoltaic system, ensuring improved energy efficiency and a strong focus on sustainability. An ideal solution as a primary residence, seaside villa, or prestigious investment. Price: € 2,600,000.00












































