-
Superficie
120 mq
-
Bagni
3
-
Camere
2
Descrizione
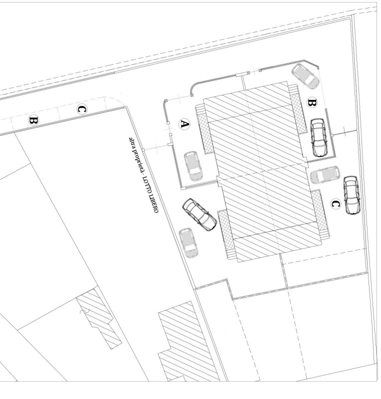
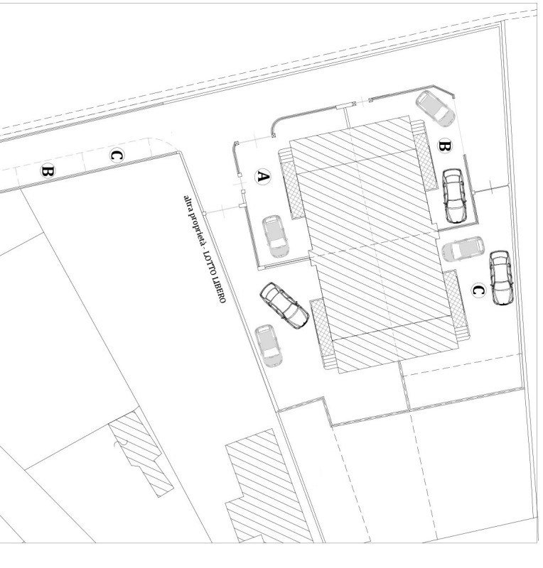
CAMAIORE – Capezzano Pianore, a soli 6 km dal mare, villette in complesso quadrifamiliare di nuova costruzione, sviluppate su tre livelli. Al piano terra si trovano soggiorno con angolo cottura e bagno; al primo piano due camere, bagno e terrazza; al piano seminterrato ampia taverna con bagno. Ogni unità è dotata di piccolo giardino e posto auto. Superficie immobile 136 mq. Immobili realizzati con ottimi materiali e soluzioni moderne, ideali per famiglie o come seconda casa. Richiesta € 420.000 – Rif. 333.
Informazioni aggiuntive
Tipologia:Villa Quadrifamiliare
Superficie:120 mq
Numero Vani:6
Numero Camere:2
Numero Bagni:3
Livelli:3
Posto Auto:Posto Auto
Ingresso:Indipendente
Giardino:Privato
Cucina:Angolo cottura
Classe Energetica:A1
P.E. Non Rinnovabile:69.1 kWh/m2
Prestazione Estate:Alta
Prestazione Inverno:Alta
Lati liberi:Due, ad angolo
Accessori
Riscaldamento:Autonomo
Tipo Riscaldamento:Radiatori
Alimentazione:Metano
Aria Condizionata:Sì
Arredamento:Non arredato
Distanze
Mare:6000m










