-
Superficie
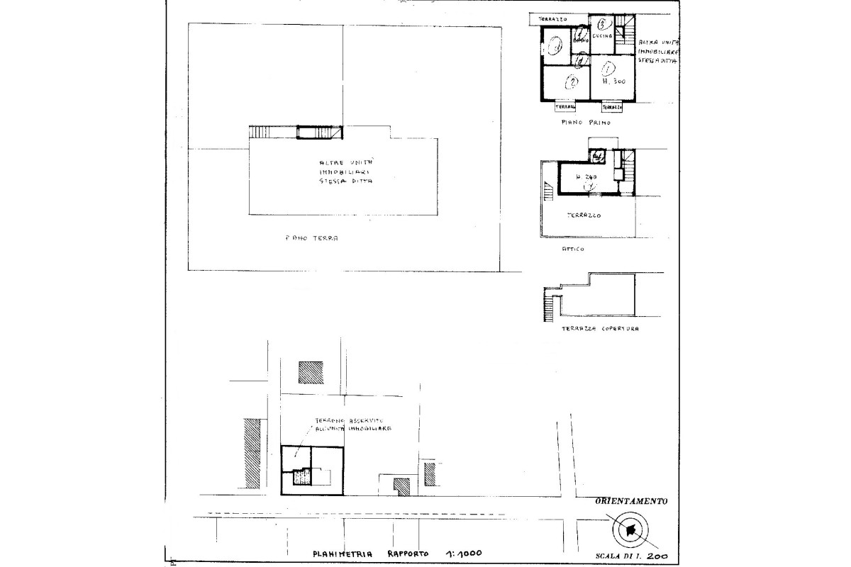
107 mq
-
Bagni
2
-
Camere
3
Descrizione
STAGIONE E.16.000,00 ESCLUSO CONSUMI E COMMISSIONI AGENZIA N.B. I PERIODI NON INDICATI NON SONO DISPONIBILI MARINA DI PIETRASANTA – A soli 100 metri dal viale a mare, in una delle zone più richieste e comode ai servizi, proponiamo appartamento indipendente con giardino, sviluppato su due livelli (piano primo e secondo) e caratterizzato da ottimi spazi sia interni che esterni. L’abitazione si compone al primo piano di un luminoso soggiorno, cucina separata, una camera matrimoniale, una camera singola ed un bagno. Al secondo piano si trova una camera matrimoniale con bagno e d un ampia terrazza abitabile disposta su due livelli. Completa la proprietà un giardino esclusivo di circa 120 mq, perfetto per momenti di relax o per ospitare auto e/o bici e moto. Superficie immobile: 107 mq. Giardino: 120 mq.







































